Vielseitiges Renditeobjekt: Gepflegtes Mehrgenerationenhaus mit drei Wohneinheiten und Nebengebäude
Objektart
Adresse
Objektdaten
Informationen
Ausstattung
Details
Bei der angebotenen Immobilie handelt es sich um ein Mehrfamilien- bzw. Mehrgenerationenhaus mit drei Wohneinheiten und einem Nebengebäude, das ca. in den 1960er Jahren errichtet wurde. Das Objekt befindet sich in Langen (Hessen) und verbindet urbanes Wohnen mit einer angenehm grünen Umgebung. Neben dem großzügigen Platzangebot überzeugt insbesondere der weitläufige Garten mit vielseitigem Potenzial.
Grundstück und Außenbereich:
Das Grundstück wird straßenseitig über ein Tor betreten, von dem aus ein Weg entlang des Hauses zum seitlichen Hauseingang führt. Zudem befinden sich hier praktische Abstellmöglichkeiten für Fahrräder sowie der Zugang zu den Mülltonnen. Der hintere Teil des Grundstücks öffnet sich zu einem liebevoll angelegten Garten mit Obstbäumen und großzügigen Grünflächen - ideal für entspannte Sommerstunden oder gesellige Zusammenkünfte mit Familie und Freunden.
Innenbereich und Wohneinheiten:
Der seitliche Hauseingang führt in ein großzügiges Treppenhaus, das vor rund 14 Jahren umfassend renoviert wurde. In diesem Zuge wurden unter anderem zweifachverglaste Fenster sowie neue Fensterbänke verbaut. Das Treppenhaus bietet Zugang zu allen Wohneinheiten sowie zum Keller.
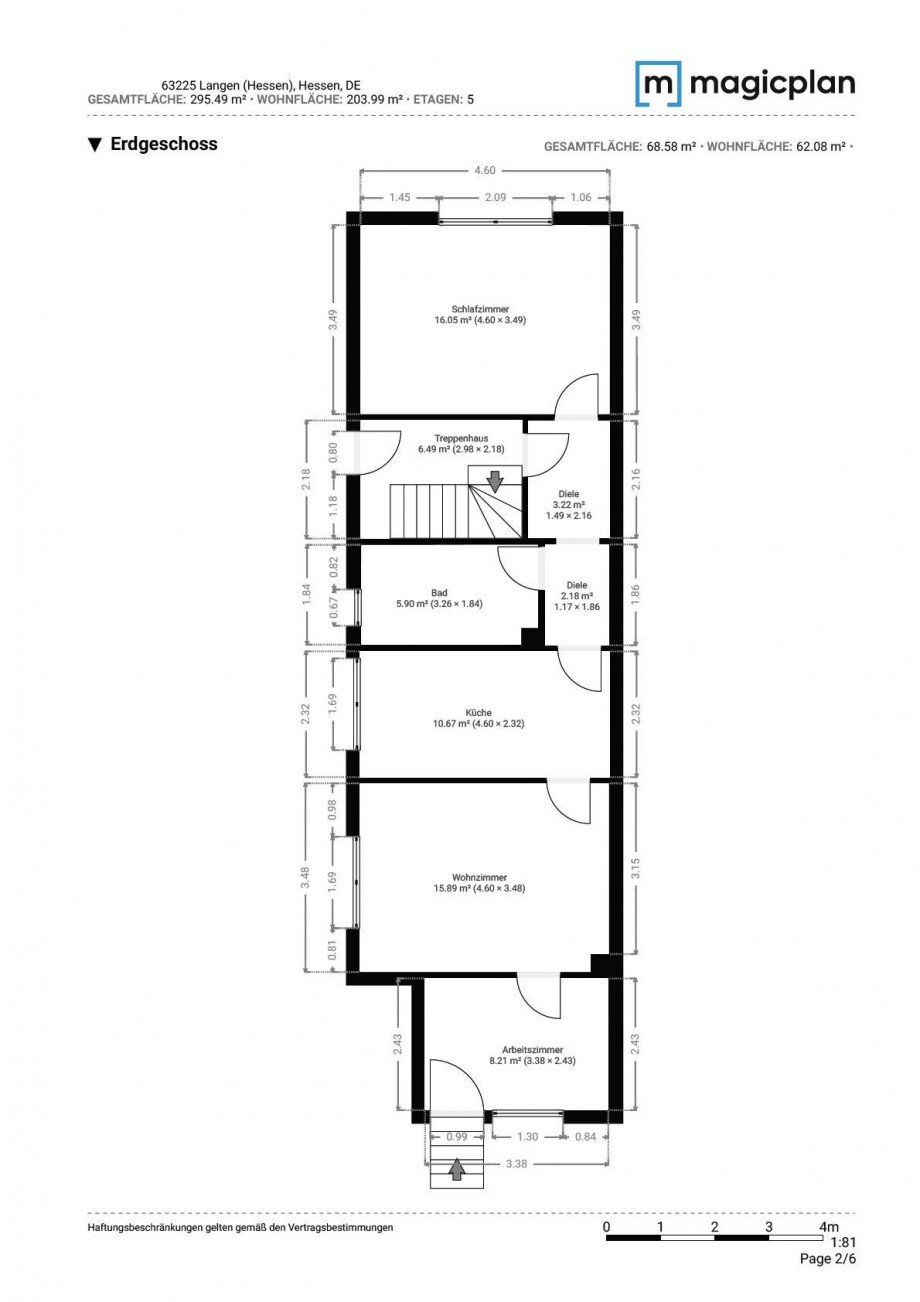
Die Erdgeschosswohnung (Hochparterre) verfügt über einen klassischen Grundriss mit einem langen Flur, von dem aus alle Räume erreichbar sind. Neben Schlafzimmer, Bad und Küche überzeugt insbesondere das großzügige Wohnzimmer mit angrenzendem Zimmer und direktem Gartenzugang über eine Terrassentür. Diese Einheit ist ab dem 01.04.2026 vermietet.
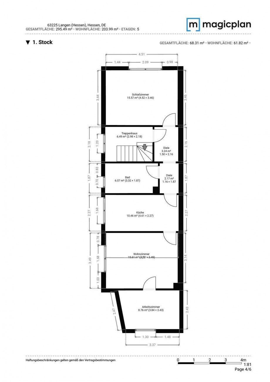
Die Wohnung im Obergeschoss verfügt über den gleichen Grundriss wie die Einheit im Erdgeschoss. Sie befindet sich in einem gepflegten Zustand und bietet ebenfalls sehr gutes Vermietungspotenzial. Auch diese Einheit ist ab dem 01.04.2026 vermietet.
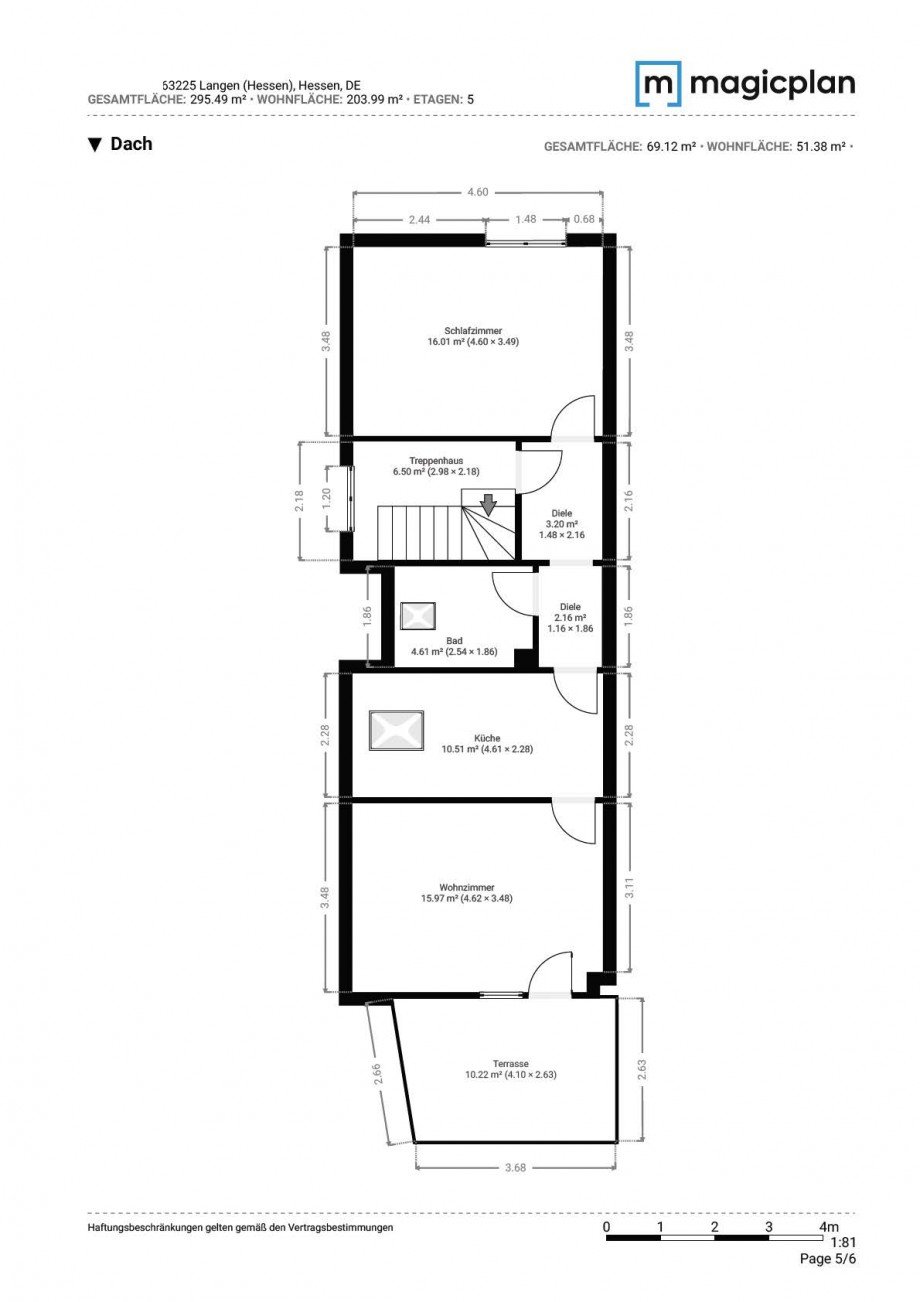
Die Dachgeschosswohnung weist den gleichen Schnitt auf, verfügt jedoch über ein etwas kleineres Wohnzimmer, dafür aber über eine angrenzende Dachterrasse, die besonders in den Sommermonaten einen hohen Wohnwert bietet. Diese Einheit ist seit 2019 zuverlässig vermietet.
Keller:
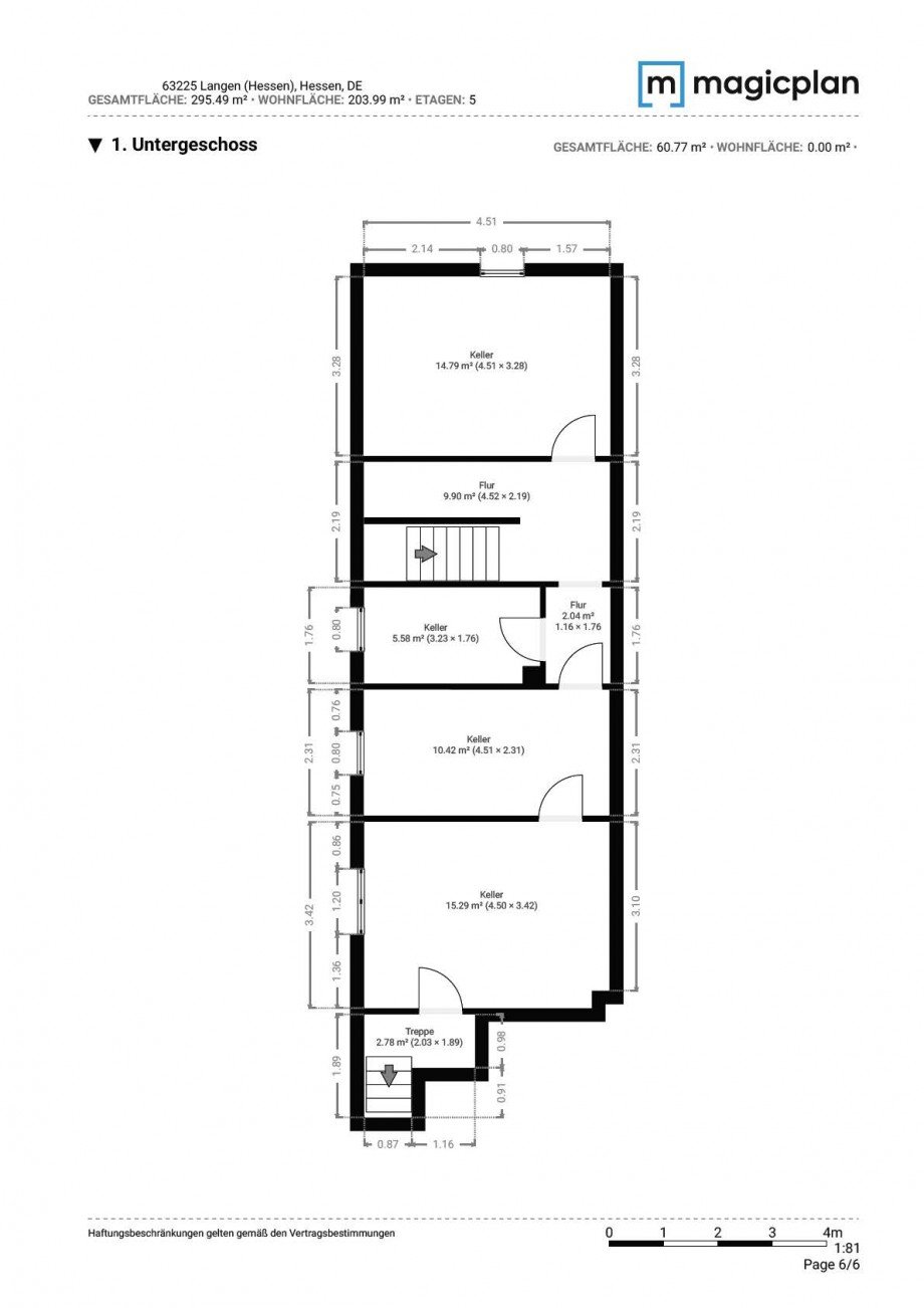
Im Keller stehen für jede Wohneinheit separate Kellerabteile zur Verfügung. Ergänzt wird dieser Bereich durch eine gemeinschaftliche Waschküche mit direktem Zugang zum Hof und Garten - ein praktischer Mehrwert für die Bewohner. Des Weiteren ist eines der Kellerabteile aktuell vermietet.
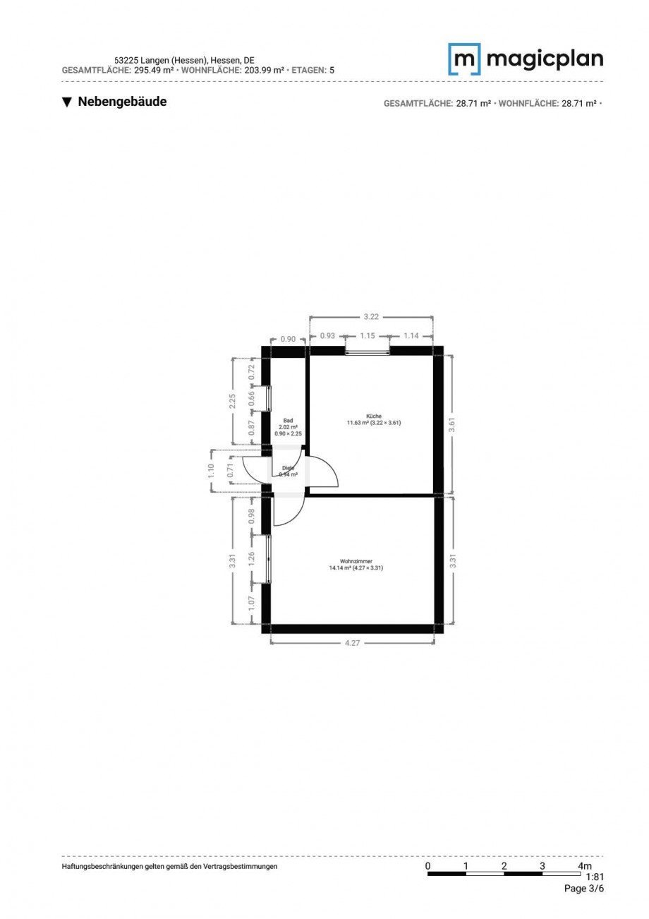
Nebengebäude:
Ein separates Nebengebäude rundet das Angebot ideal ab. Dieses wurde ca. 2018/2019 saniert und verfügt über ein Schlafzimmer, ein kleines Badezimmer sowie einen kombinierten Wohn-, Ess- und Küchenbereich. Die Einheit ist separat an Strom und Wasser angeschlossen. Das Nebengebäude ist derzeit nicht vermietet; eine Neuvermietung kann jedoch nach dem Erwerb der Immobilie durch den neuen Eigentümer jederzeit erfolgen.
Fazit:
Dieses Mehrfamilienhaus bietet eine attraktive Kombination aus laufenden Mieteinnahmen und zusätzlichem Entwicklungspotenzial. Es eignet sich sowohl für Kapitalanleger als auch für Eigennutzer, die Wohnen und Investition sinnvoll miteinander verbinden möchten.
Kontaktieren Sie uns gerne - diese Immobilie bietet vielfältige Möglichkeiten und sollte persönlich besichtigt werden.
- Wohnfläche: ca. 175,45 m²
- Nutzfläche: 84,18 m²
- Kellerfläche: ca. 55,46 m²
- Grundstücksfläche: ca. 333,00 m²
- Keller: Ja
- Ist-Miete gesamt: ca. 27.600,00 EUR p.a. (Nettokaltmiete)
- Soll-Miete gesamt: ca. 31.200,00 EUR p.a. (Nettokaltmiete)
- Leerstandsquote (nach Mieteinheiten): 3 vom 4 Einheiten vermietet
- Badezimmer: Fenster, Badewanne
- Bodenbeläge: Fliesen, Laminat und PVC
- Heizung: Zentralheizung
- Befeuerungsart: Gas
- Wände: Tapete
- Decken: Tapete und Holzdecke
- Fenster Wohnungen: 2-fach verglast, Kunststoff
- Fenster Treppenhaus: 2-fach verglast, Kunststoff
- Rollläden: Ja
- Garten: Ja
- Erreichbarkeit: Hervorragende Verkehrsanbindung zu sämtlichen Autobahnen, Bussen, Bahnen und dem Frankfurter Flughafen
Lage:
Langen liegt im Bundesland Hessen und gehört zum Landkreis Offenbach. Die Stadt hat etwa 39.000 Einwohner und befindet sich zentral im Rhein-Main-Gebiet, zwischen den Städten Frankfurt am Main und Darmstadt. Diese Lage macht Langen zu einem attraktiven Wohn- und Arbeitsort, da es die Vorteile einer kleineren Stadt mit der Nähe zu zwei Großstädten verbindet.
Verkehrsanbindung:
Langen bietet eine hervorragende Verkehrsanbindung. Die Stadt liegt direkt an der Autobahn A5, die eine schnelle Verbindung nach Frankfurt am Main (etwa 15 km nördlich) und Darmstadt (etwa 15 km südlich) ermöglicht. Die Autobahnen A5 und A661 sind in nur 5 bis 10 Minuten zu erreichen, was eine exzellente Anbindung an das überregionale Straßennetz gewährleistet.
Der Bahnhof Langen ist ein wichtiger Knotenpunkt für Pendler. Die S-Bahn-Linien S3 und S4 verbinden Langen mit Frankfurt, Darmstadt und anderen umliegenden Städten. Die Innenstadt von Frankfurt ist in nur 15 bis 20 Minuten mit der Bahn erreichbar, was Langen zu einem idealen Wohnort für Pendler macht. Der Frankfurter Flughafen ist ebenfalls in kurzer Zeit (ca. 15 Minuten) erreichbar, was die Stadt besonders für Geschäftsreisende und Urlauber attraktiv macht.
Infrastruktur:
Langen ist ein bedeutender Wirtschaftsstandort in der Region. Hier befinden sich wichtige Unternehmen und Institutionen, darunter das Paul-Ehrlich-Institut, das für die Zulassung von Impfstoffen und biomedizinischen Arzneimitteln zuständig ist. Die IT-Branche ist ebenfalls stark vertreten, mit Firmen wie der Deutschen Telekom. Die Stadt bietet eine gute Infrastruktur mit zahlreichen Einkaufsmöglichkeiten, Gastronomie und Dienstleistungen.
Bildung und Freizeit:
Langen verfügt über ein breites Bildungsangebot, darunter mehrere Grundschulen, eine Gesamtschule und ein Gymnasium. Die Freizeitmöglichkeiten in Langen sind vielfältig. Das beliebte Strandbad Langener Waldsee bietet Erholung und Badespaß im Sommer. Es gibt zahlreiche Rad- und Wanderwege sowie Sportvereine und Kultureinrichtungen.
Wohnqualität:
Langen bietet eine hohe Wohnqualität durch die Kombination aus urbanem Leben und naturnahem Wohnen. Die Immobilienpreise sind besonders für Familien und Pendler attraktiv. Die Stadtteile Oberlinden, Neurott und Altstadt bieten verschiedene Wohnstile, von modernen Neubauten bis hin zu charmanten Fachwerkhäusern.
Natur und Erholung:
Die Umgebung von Langen ist geprägt von einer abwechslungsreichen Naturlandschaft. Der Langener Stadtwald bietet zahlreiche Wander- und Radwege und lädt zu erholsamen Spaziergängen ein. Der nahegelegene Langener Waldsee ist nicht nur ein beliebtes Badeziel, sondern bietet auch Möglichkeiten zum Segeln und Angeln.
Zusammenfassung:
Langen in Hessen besticht durch seine zentrale Lage im Rhein-Main-Gebiet, die hervorragende Verkehrsanbindung und die vielfältigen Freizeit- und Erholungsmöglichkeiten. Die Stadt vereint die Vorteile des urbanen Lebens mit einer naturnahen Umgebung und ist ein attraktiver Standort sowohl zum Wohnen als auch zum Arbeiten.
GELDWÄSCHE:
Als Immobilienmaklerunternehmen ist die Main Estate Immobilien GmbH nach § 2 Abs. 1 Nr. 14 und § 11 Abs. 1, 2 Geldwäschegesetz (GwG) dazu verpflichtet, bei der Begründung einer Geschäftsbeziehung die Identität des Vertragspartners festzustellen und zu überprüfen, bzw. sobald ein ernsthaftes Interesse an der Durchführung des Immobilienkaufvertrages besteht. Hierzu ist es erforderlich, dass wir nach § 11 Abs. 4 GwG die relevanten Daten Ihres Personalausweises festhalten (wenn Sie als natürliche Person handeln) - beispielsweise mittels einer Kopie. Bei einer juristischen Person benötigen wir eine Kopie des Handelsregisterauszugs, aus welchem der wirtschaftlich Berechtigte hervorgeht. Das Geldwäschegesetz sieht vor, dass der Makler die Kopien bzw. Unterlagen fünf Jahre aufbewahren muss. Als unser Vertragspartner haben Sie auch eine Mitwirkungspflicht nach § 11 Abs. 6 GwG.
HAFTUNG:
Wir weisen darauf hin, dass die von uns weitergegebenen Objektinformationen, Unterlagen, Pläne etc. vom Verkäufer bzw. Vermieter stammen. Eine Haftung für die Richtigkeit oder Vollständigkeit der Angaben übernehmen wir daher nicht. Es obliegt daher unseren Kunden, die darin enthaltenen Objektinformationen und Angaben auf ihre Richtigkeit hin zu überprüfen. Alle Immobilienangebote sind freibleibend und vorbehaltlich Irrtümern, Zwischenverkauf- und Vermietung oder sonstiger Zwischenverwertung.
BILDER: Aus Gründen der Ästhetik wurden u.U. manche Bilder mit Hilfe von KI optimiert.
EIGENTÜMERSERVICE:
Planen Sie den Verkauf oder die Vermietung Ihrer Immobilie, so ist es für Sie wichtig, deren Marktwert zu kennen. Lassen Sie kostenfrei und unverbindlich den aktuellen Wert Ihrer Immobilie professionell durch uns einschätzen. Unser professionelles Netzwerk ermöglicht es uns, Verkäufer bzw. Vermieter und Interessenten bestmöglich zusammenzuführen.
HINWEIS: Sollten mehrere Kaufzusagen zur angebotenen Immobilie / Grundstück vorliegen, hält sich der Eigentümer das Recht vor, von einem Verkaufsangebot auf ein Bieterverfahren zu wechseln.
Ansprechpartner
Mobil: +49 162 6625555
doenitz@main-estate.de
Downloads
Energieausweis (Bedarfsausweis)
301,90 kWh / (m²*a) Endenergiebedarf
301,90 kWh / (m²*a) Endenergiebedarf
301,90 kWh / (m²*a) Endenergiebedarf
Weitere Informationen
| Wesentlicher Energieträger | Gas |
| Energieausweis Ausstelldatum | 2024-08-08 |
| Energieausweis gültig bis | 07.08.2034 |
| Energieausweis Jahrgang | ab dem 1.5.2014 |
| Energieausweis Werteklasse | H |
| Energieausweis Baujahr | 1960 |
| Energieausweis Gebäudeart | Wohngebäude |
| Heizung | Zentralheizung |
| Befeuerung | Gas |
Ich bin damit einverstanden, dass mir Karten von Google angezeigt werden. Es gelten die Datenschutzbedingungen von Google (https://policies.google.com/privacy).
Ich bin einverstanden