Großzügige 3-Zimmer-Wohnung mit sonnigem Balkon in zentraler Lage von Gravenbruch
Objektart
Adresse
Objektdaten
Informationen
Ausstattung
Details
Diese attraktive 3-Zimmer-Wohnung befindet sich in zentraler Lage von Neu-Isenburg-Gravenbruch und besticht durch einen durchdachten Grundriss sowie ein gepflegtes Wohnumfeld.
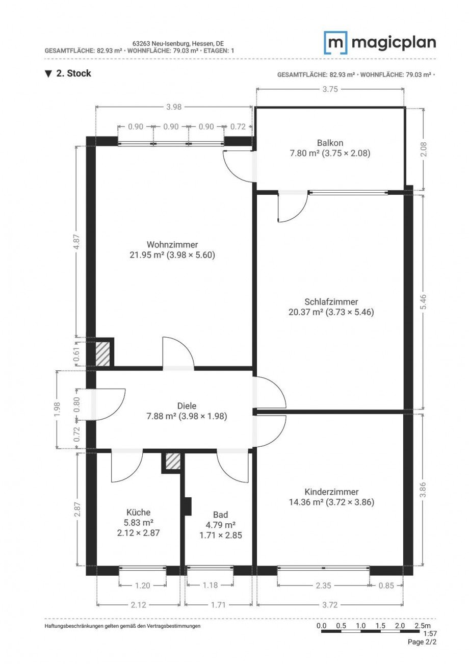
Die Einheit liegt im 2. Obergeschoss eines gepflegten Mehrfamilienhauses und ist bequem über das Treppenhaus oder den Aufzug erreichbar. Beim Betreten empfängt Sie ein großzügiger Flur, der zu allen Räumen der Wohnung führt.
Das helle Wohnzimmer ist sonnig und freundlich, öffnet sich zum südwestlich ausgerichteten Balkon und bietet ausreichend Platz für gemütliche Sitzgelegenheiten. Vom Flur aus gelangen Sie auch in das Schlafzimmer, das ebenfalls über einen direkten Zugang zum Balkon verfügt - ideal, um frische Luft und Tageslicht zu genießen. Das dritte Zimmer eignet sich hervorragend als Kinderzimmer, Gästezimmer oder Arbeitsbereich und ist flexibel nutzbar.
Die Küche ist funktional geschnitten und bietet Raum für die individuelle Gestaltung. Das Tageslichtbad mit Badewanne liegt praktisch zwischen Schlaf- und Kinderzimmer.
Die Wohnung benötigt etwas Liebe: Renovierungs- und Sanierungsmaßnahmen ermöglichen es, die Räume nach eigenen Vorstellungen modern und gemütlich zu gestalten. So lässt sich aus diesem Objekt ein komfortables, neues Zuhause mit viel Potenzial schaffen.
Besonders hervorzuheben ist, dass wesentliche Sanierungsarbeiten, wie beispielsweise an Dach, Fassade, Balkonen, Fenstern und Leitungen, erst vor kurzer Zeit durchgeführt wurden.
Abgerundet wird das Angebot durch ein geräumiges Kellerabteil das den Wohnkomfort zusätzlich erhöht.
- Wohnfläche: ca. 79,08
- Baujahr: ca. 1963
- Etage: 2.OG
- Keller: Ja
- Zimmer: 3
- Schlafzimmer: 1
- Wohn- und Esszimmer: 1
- Kinderzimmer: 1
- Badezimmer: 1
- Balkon: Ja
- Bodenbelag: Teppich, PVC
- Wände innen: Raufasertapete
- Decke innen: Raufasertapete
- Fenster: 2-fach isolierverglaste Kunststofffenster (1996)
- Heizung: Nah-/Fernwärme
- Hervorragende Verkehrsanbindung
Die angebotene Immobilie befindet sich in Neu-Isenburg / Gravenbruch, einem gefragten und ruhigen Wohnstandort im Rhein-Main-Gebiet. Die Lage überzeugt durch eine gelungene Kombination aus naturnahem Wohnen und hervorragender Anbindung an die umliegenden Städte.
Die Autobahnen A3, A5 und A661 sind in wenigen Fahrminuten erreichbar und ermöglichen eine schnelle Verbindung in alle Richtungen. Die Frankfurter Innenstadt sowie der internationale Flughafen sind in etwa 10 bis 15 Minuten bequem mit dem Auto erreichbar.
Gravenbruch zeichnet sich insbesondere durch seine grüne Umgebung aus. Wälder und weitläufige Spazierwege befinden sich in unmittelbarer Nähe und laden zu erholsamen Stunden im Freien ein. Hier genießen Sie eine angenehme Wohnatmosphäre mit hohem Erholungswert.
Gleichzeitig profitieren Sie von einer guten Infrastruktur: Einkaufsmöglichkeiten für den täglichen Bedarf, Restaurants sowie verschiedene Freizeitangebote befinden sich in der näheren Umgebung und sind teilweise fußläufig erreichbar.
Insgesamt bietet die Lage eine ideale Balance zwischen Ruhe, Natur und urbaner Nähe - perfekt für alle, die entspannt wohnen und dennoch schnell in der Metropolregion Frankfurt am Main sein möchten.
GELDWÄSCHE: Als Immobilienmaklerunternehmen ist die Main Estate Immobilien GmbH nach § 2 Abs. 1 Nr. 14 und § 11 Abs. 1, 2 Geldwäschegesetz (GwG) dazu verpflichtet, bei der Begründung einer Geschäftsbeziehung die Identität des Vertragspartners festzustellen und zu überprüfen, bzw. sobald ein ernsthaftes Interesse an der Durchführung des Immobilienkaufvertrages besteht. Hierzu ist es erforderlich, dass wir nach § 11 Abs. 4 GwG die relevanten Daten Ihres Personalausweises festhalten (wenn Sie als natürliche Person handeln) - beispielsweise mittels einer Kopie. Bei einer juristischen Person benötigen wir eine Kopie des Handelsregisterauszugs, aus welchem der wirtschaftlich Berechtigte hervorgeht. Das Geldwäschegesetz sieht vor, dass der Makler die Kopien bzw. Unterlagen fünf Jahre aufbewahren muss. Als unser Vertragspartner haben Sie auch eine Mitwirkungspflicht nach § 11 Abs. 6 GwG.
HAFTUNG: Wir weisen darauf hin, dass die von uns weitergegebenen Objektinformationen, Unterlagen, Pläne etc. vom Verkäufer bzw. Vermieter stammen. Eine Haftung für die Richtigkeit oder Vollständigkeit der Angaben übernehmen wir daher nicht. Es obliegt daher unseren Kunden, die darin enthaltenen Objektinformationen und Angaben auf ihre Richtigkeit hin zu überprüfen. Alle Immobilienangebote sind freibleibend und vorbehaltlich Irrtümern, Zwischenverkauf- und Vermietung oder sonstiger Zwischenverwertung.
EIGENTÜMERSERVICE:
Planen Sie den Verkauf oder die Vermietung Ihrer Immobilie, so ist es für Sie wichtig, deren Marktwert zu kennen. Lassen Sie kostenfrei und unverbindlich den aktuellen Wert Ihrer Immobilie professionell durch uns einschätzen. Unser professionelles Netzwerk ermöglicht es uns, Verkäufer bzw. Vermieter und Interessenten bestmöglich zusammenzuführen.
BILDER: Aus Gründen der Ästhetik wurden u.U. manche Bilder mit Hilfe von KI optimiert.
Ansprechpartner
Mobil: +49 162 6625555
doenitz@main-estate.de
Downloads
Energieausweis (Verbrauchsausweis)
142,19 kWh / (m²*a) Energieverbrauchskennwert
142,19 kWh / (m²*a) Energieverbrauchskennwert
142,19 kWh / (m²*a) Energieverbrauchskennwert
Weitere Informationen
| Wesentlicher Energieträger | Fernwärme |
| Energieausweis Ausstelldatum | 2023-02-21 |
| Energieausweis gültig bis | 21.02.2033 |
| Energieausweis Jahrgang | ab dem 1.5.2014 |
| Energieverbrauch für Warmwasser | enthalten |
| Energieausweis Werteklasse | E |
| Energieausweis Baujahr | 1963 |
| Energieausweis Gebäudeart | Wohngebäude |
| Heizung | Fernheizung |
| Befeuerung | Fernwärme |
Ich bin damit einverstanden, dass mir Karten von Google angezeigt werden. Es gelten die Datenschutzbedingungen von Google (https://policies.google.com/privacy).
Ich bin einverstanden